
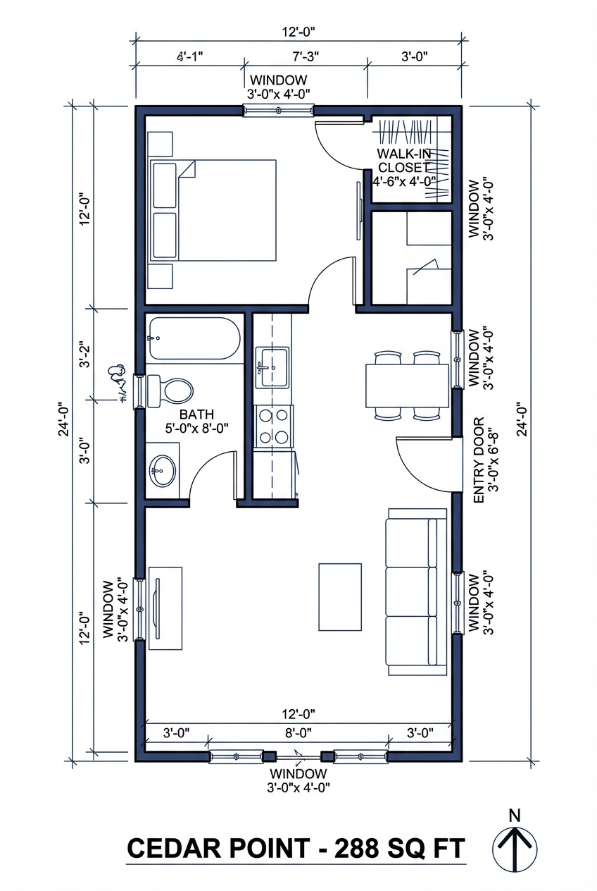
12' × 24'
Floor Plan

Available in Sechelt, BC
Cedar Point
Tofino Luxury Retreat
$92,900CAD
Designed for BC's premium vacation markets—from Tofino to Pender Island—the Cedar Point features rich Western Red Cedar.
288
Square Feet
12' × 24'
Dimensions
Mono-Pitch
Roof Style
2-4 days
Delivery to Sechelt
Ideal For
Tofino RentalGulf Island RetreatLuxury Guest SuiteWellness RetreatExecutive Cabin
Delivery to Sechelt
Distance
70km
Delivery Time
2-4 days
Installation Team
Sunshine Coast Team
Build Time
8-12 weeks
Ready to Order the Cedar Point?
Contact us today for a detailed quote including delivery and installation to Sechelt.
Request Quote

