
14' × 24'
Floor Plan

Available in Sechelt, BC
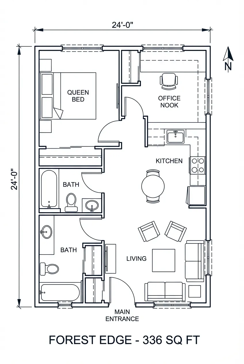
Forest Edge
BC Off-Grid Living
$109,900CAD
Designed for BC's off-grid pioneers—from Sunshine Coast homesteaders to Cariboo cabin dwellers.
336
Square Feet
14' × 24'
Dimensions
Mono-Pitch
Roof Style
2-4 days
Delivery to Sechelt
Ideal For
Off-Grid HomeEco RetreatNet-Zero LivingForest CabinSustainable ADU
Delivery to Sechelt
Distance
70km
Delivery Time
2-4 days
Installation Team
Sunshine Coast Team
Build Time
8-12 weeks
Similar Cabins for Sechelt
Ready to Order the Forest Edge?
Contact us today for a detailed quote including delivery and installation to Sechelt.
Request Quote
