
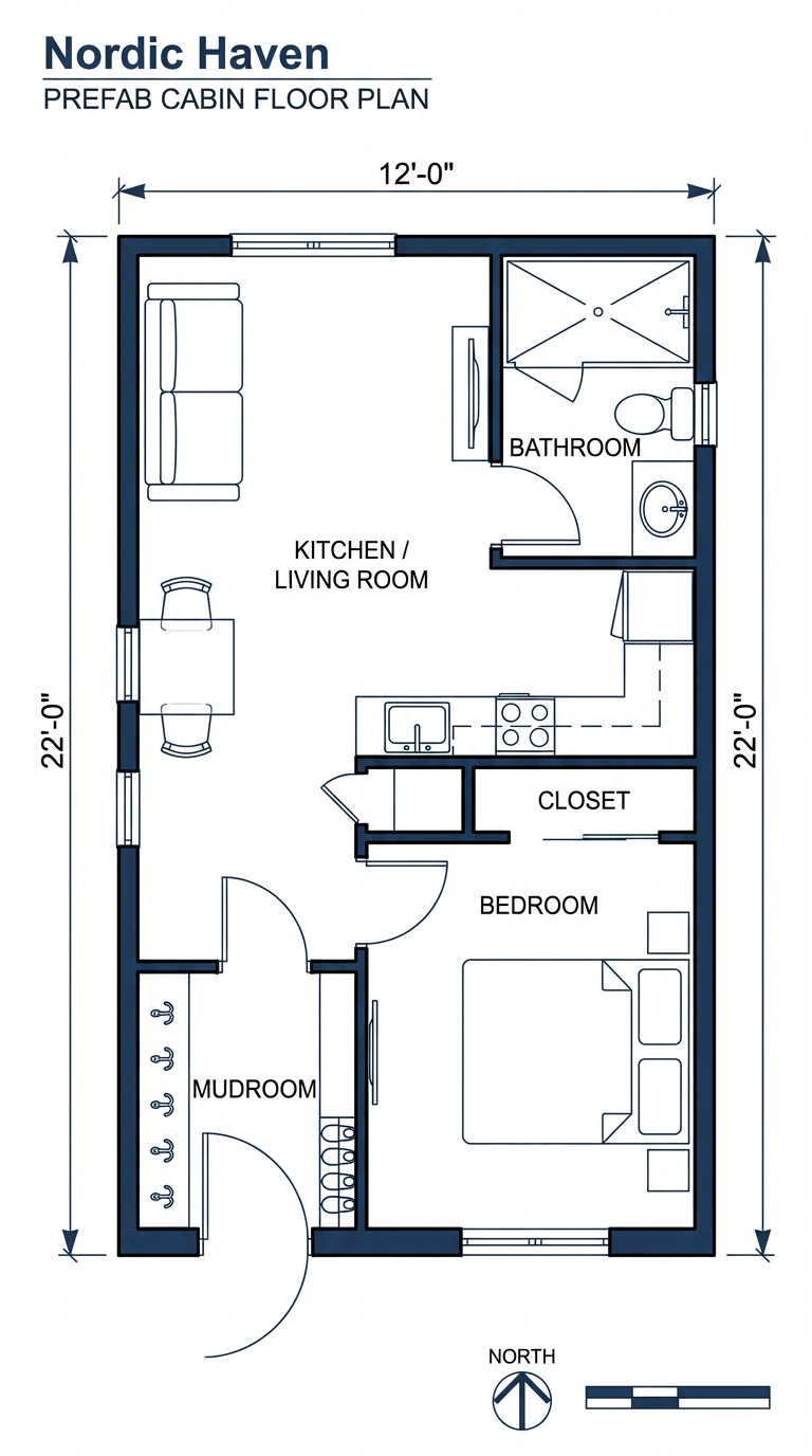
12' × 22'
Floor Plan

Available in Squamish, BC
Nordic Haven
Vancouver Modern ADU
$74,900CAD
Perfect for Metro Vancouver and Lower Mainland properties, the Nordic Haven maximizes BC's new ADU zoning allowances.
264
Square Feet
12' × 22'
Dimensions
Flat Roof
Roof Style
2-3 days
Delivery to Squamish
Ideal For
Vancouver ADUIn-Law SuiteHome OfficeGuest HouseRental Income Unit
Delivery to Squamish
Distance
65km
Delivery Time
2-3 days
Installation Team
Sea-to-Sky Team
Build Time
8-12 weeks
Similar Cabins for Squamish
Ready to Order the Nordic Haven?
Contact us today for a detailed quote including delivery and installation to Squamish.
Request Quote
